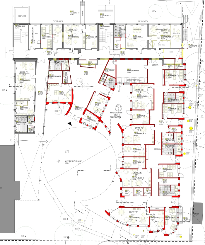
| Die Kindertagesstätte Düsseldorfer Straße verfügt derzeit über 7 Gruppen mit
ca. 145 Kindern. Beabsichtigt ist die Erweiterung auf 8 Gruppen mit
ca. 150 Kindern. Durch den Umbau und die Erweiterung der Kindertagesstätte
werden 31 Plätze für Kinder unter 3 Jahren geschaffen. Der Bestand verfügt über eine Bruttogrundfläche von rd. 1.684,00 m², die geplante Erweiterung hat eine Bruttogrundfläche von 1.088,00 m². Neben dem Ausbau des Betreuungsangebotes für unter 3-jährige mit entsprechenden Räumlichkeiten ist die Verlegung der im Souterrain des bestehenden Schulgebäudes befinden 3 Gruppen, in das Erdgeschoss des Neubaus, die Errichtung eines 2. Mehrzweckraumes, die Erweiterung und Verlagerung der Küche und des Büros der Leiterin und die Schaffung eines adäquaten Eingangsbereiches beabsichtigt. Das heute als Kindertagesstätte genutzte, ehemalige 3-geschossige Schulgebäude liegt in Nord-Süd-Ausrichtung in etwa mittig im Baugrundstück. Nördlich der Tagesstätte befindet sich der ehemalige Schulhof mit Asphaltflächen. In diese Richtung orientiert sich auch der geplante Neubau in Nord-Süd-Ausrichtung an der westlichen Grundstücksgrenze. Das innere Erschließungssystem baut sich entsprechend der Größe der Tagesstätte, wie eine kleine Stadt mit Orientierungsplätzen innerhalb der Flurzonen vor den Gruppeneinheiten und der Eingangshalle, als Hauptplatz auf. Zur Auflockerung und kindgerechter Gestaltung werden dem strengen Schulgebäude zum Innenhof der Außenspielfläche hin geschwungene Wandformen entgegen gesetzt. |
|
|
|
|
|
|
|
Eingangshalle |
Lichtkuppel -
Eingangshalle |
|
Lichtband - Mehrzweckraum |
Mehrzweckraum |
Sichtverbindungen |
|
Gruppenraum |
Gruppennebenraum |
Waschraum |
|
Gruppenraum |
Flur |
Gruppennebenraum |
![]() Die Gruppenaufnahme zeigt (vl) Architekt Peter Ratka, Jugendamtsleiter Holger Pethke, IMD-Chef Uwe Rohde, Bauleiter IMD Jörg Neles, Bezirksamtsleiter Carsten Alberts, Kindergarten-Leiterin Jutta Ghajati und Sachgebietsleiter i.R. Ulrich Kropp, sitzend Prof. Dr. Tassilo Knauf und Sonja Marnette vom Verein zur Förderung der Reggio-Pädagogik, zuständig für das Qualitätsmanagement an Duisburger Kindertagesstätten. Foto: Stadt-Panorama / Rheinische Post Duisburg Elementarpädagogik der besten Art Einrichtung in Kaldenhausen setzt reg(g)ional neue Maßstäbe Als die Städtische Kindertagesstätte in Kaldenhausen zum Start im Januar 1983 110 Knirpse im Alter von 4 Monaten bis 14 Jahren unter ihre Fittiche nahm, ahnte wohl kaum jemand, was jetzt im März 2016 gefeiert werden konnte: In einem spannenden Gebäude-Ensemble verwöhnen engagierte Erzieherinnen 150 Jungen und Mädchen im Alter von 4 Monaten bis 6 Jahren mit einem Pädagogik-Konzept der Extraklasse. Ehrengast OB Sören Link betonte in einem intensiven Grußwort den neuen Wert der Einrichtung. Die Planer hätten besondere Impulse gesetzt und eine einzigartige kindgerechte Atmosphäre geschaffen. Im September 2013 habe der „große Um- und Anbau“ begonnen, neben dem Ausbau des Betreuungsangebotes für Unter-3-jährige mit entsprechenden Räumlichkeiten wurde die Verlegung der im Souterrain des bestehenden Schulgebäudes befindlichen Gruppen in das Erdgeschoss des Neubaus, die Errichtung eines zweiten Mehrzweckraumes, die Erweiterung und Verlagerung der Küche und des Büros der Leiterin sowie die Schaffung eines angemessenen Eingangsbereiches umgesetzt. Der Clou: Das innere Erschließungssystem ist nach den Entwürfen des Architekturbüros Ratka und Kornettka wie eine kleine Stadt mit Orientierungsplätzen innerhalb der Flurzonen und der Eingangshalle als Hauptplatz aufgebaut. Zur Auflockerung und für eine kindgerechte Gestaltung wurden dem vorhandenen strengen Schulgebäude geschwungene Wandformen entgegengesetzt. Die Kosten für dieses Raumprogramm-Wunder in Höhe von 3,3 Mio € (inklusive Außenanlagen) sind das eine, das pädagogische Konzept das andere. Seit 2010 hat sich das Personal mit den Inhalten der Reggio-Pädagogik beschäftigt, ein Jahr später wurde die Kita als Reggio-Einrichtung zertifiziert. Jetzt, im Rahmen der Wiedereröffnungsfeier, erhielt die Einrichtung aus den Händen von Prof. Dr. Tassilo Knauf vom Verein zur Förderung der Reggio-Pädagogik eine „Re-Zertifizierungsurkunde“, denn alle vier Jahre ist die besondere Eignung neu nachzuweisen. Info-Kasten: In der aus Norditalien stammenden Reggio-Pädagogik wird das Kind als Konstrukteur seiner Entwicklung, seines Wissens und Könnens betrachtet. Als Entdecker und Forscher will das Kind die Welt verstehen und sie in ein System von Sinn und persönliche Bedeutungen integrieren. Zugleich erweitert das Kind durch Experiment, Versuch und Irrtum seine alltagspraktische und soziale Handlungsfähigkeit. Deshalb ist die Kindertagesstätte unter Leitung von Jutta Ghajati seit 2012 auch ein „Haus der kleinen Forscher“. Dank der Arbeit nach den Vorgaben der Reggio-Pädagogik werden die Eltern immer zeitnah und ausführlich über alle Aktivitäten des Personals und der Kinder informiert und können die Lerninhalte so gut nachvollziehen. Insgesamt, so Sonja Marnette von Pro Reggio, läuft die Einrichtung dermaßen rund, dass sie diese unter den besten zehn in Deutschland sieht. Aus ihrer ganz persönlichen Sicht natürlich… |

Hof-Ansicht![]() |
Foto vom Bestand |
Seiten-Ansichten![]() Lageplan ![]() |
Grundriss![]() |
|
Aktualisiert am: 04.06.2018 / 14:28:47 |