Umbau und Erweiterung Kindertageseinrichtung
Templerstraße 20, Duisburg-Duissern

Umbau und Erweiterung der Stätischen-Kindertageseinrichtung zum Ausbau des Betreuungsangebotes
für Kinder unter 3 Jahren.

Immobilien-Management
der Stadt Duisburg

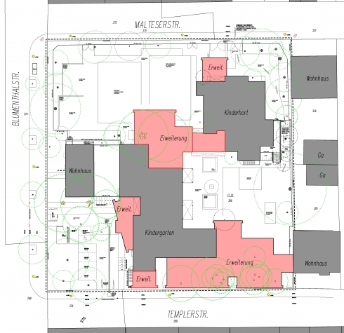
Die Kindertagesstätte Templerstraße verfügt derzeit über 5 Gruppen mit ca. 105 Kindern. Beabsichtigt ist die Erweiterung auf 7 Gruppen mit ca. 120 Kindern. Durch den Umbau und die Erweiterung der Kindertagesstätte werden 35 Plätze für Kinder unter 3 Jahren geschaffen.
Der Bestand verfügt über eine Bruttogrundfläche von rd. 860,00 m², die geplante Erweiterung hat eine Bruttogrundfläche von 792,00 m².

Neben der Neugestaltung des Eingangsbereiches erstreckt sich die Haupterweiterung parallel zur Templerstraße, in Nord-Süd-Ausrichtung, in Verlängerung zu dem vorhandenen Wohnblock südlich des Grundstückes. Eine 2. Erweiterung erfolgt zwischen den beiden Solitärgebäuden und stellt eine Verbindung beider Gebäudekomplexe dar, so dass zukünftig eine räumlich übergreifende Nutzung zwischen beiden Gebäuden möglich wird, ohne die Kinder der Außenwitterung auszusetzen. Neu- und Altbaubereich bilden zusammen einen begrünten Innenhof.

Das innere Erschließungssystem bindet an den Hauptflur des Bestandsgebäudes an und schafft über Themenhöfe Orientierung und Belichtung. Neben einer prägnanten Neugestaltung des Eingangsbereiches ist es beabsichtigt, durch kräftige farbliche Akzentuierung die Fassade längs der Templerstraße zu gliedern und die Tagesstätte insgesamt aufzuwerten.

Außenansichten:
 
 

 

 

Innenansichten:
 
Presse / Zeitungsberichte:
Zeitungsartikel WAZ-Duisburg vom 17.06.2015:

Entwurf:
Straßen-Ansicht (Templerstraße)


Straßen-Ansicht (Blumentalstraße)
Foto vom Bestand


Straßen-Ansicht (Malteserstraße)

Lageplan
Grundriss

Aktualisiert am:
25.06.2015 / 14:50:42