| Doppelhaus Duisburg-Mündelheim |

Straßenansicht:![]() |
Gartenansicht:![]() |
Grundriss - Erdgeschoss:![]() |
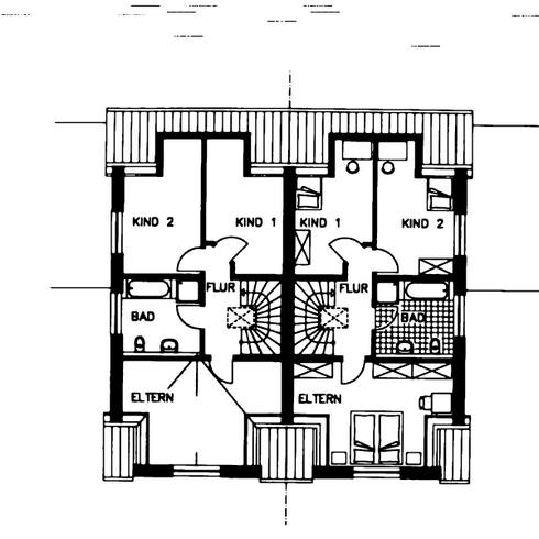
Grundriss - Dachgeschoss:![]() |
|
Aktualisiert am: 02.01.2013 / 12:29:59 |