Umbau, Sanierung und Aufstockung
des Bürogebäudes
Herner Straße 299, Bochum
In Zusammenarbeit mit:
WJB Baumanagement
GmbH & Co. KG
Wintgensstraße 85-87

47058 Duisburg

Außenansichten:
Straßenansicht nach der Sanierung und Erweiterung
Straßenansicht vor der Sanierung und Erweiterung

Hofansicht
Detail-Hofansicht

Innenansichten:


Treppenhaus:
 



Entwurf-Eingangskubus:


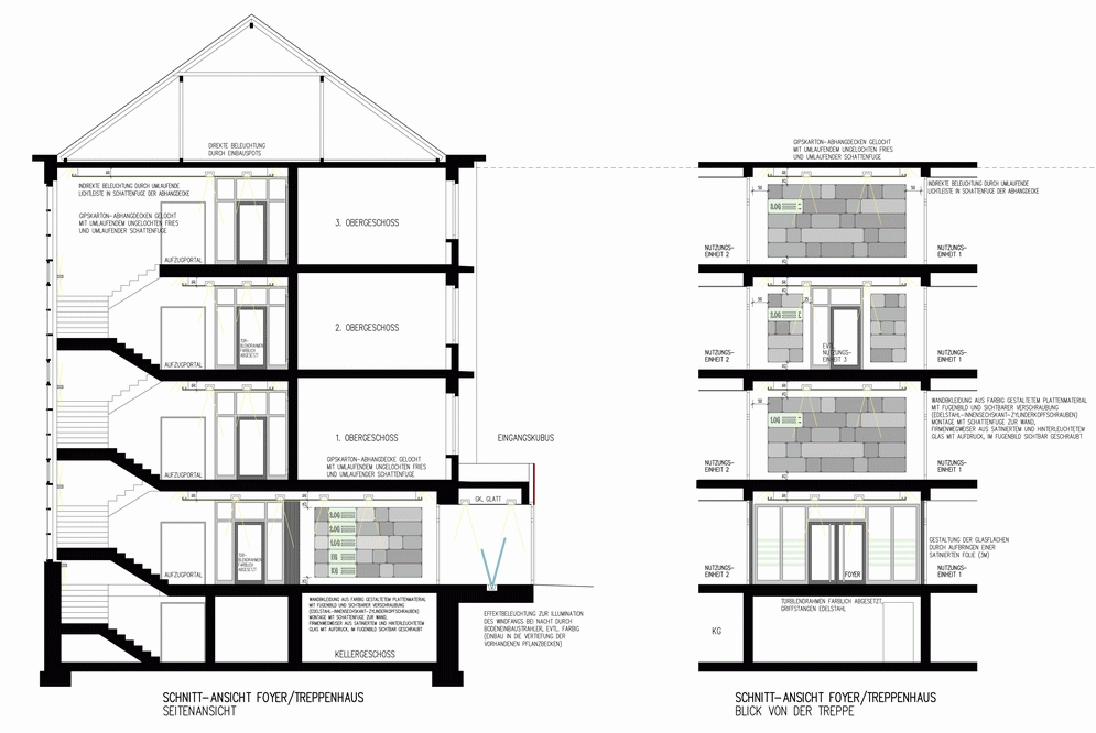
Detailplanung Foyer / Treppenhaus:


Grundriss Staffelgeschoss - 4.Obergeschoss:


Aktualisiert am:
22.02.2023 / 18:34:40